OTOR

  • Homeالرئيسية
  • Aboutحول
  • Projectsمشاريع

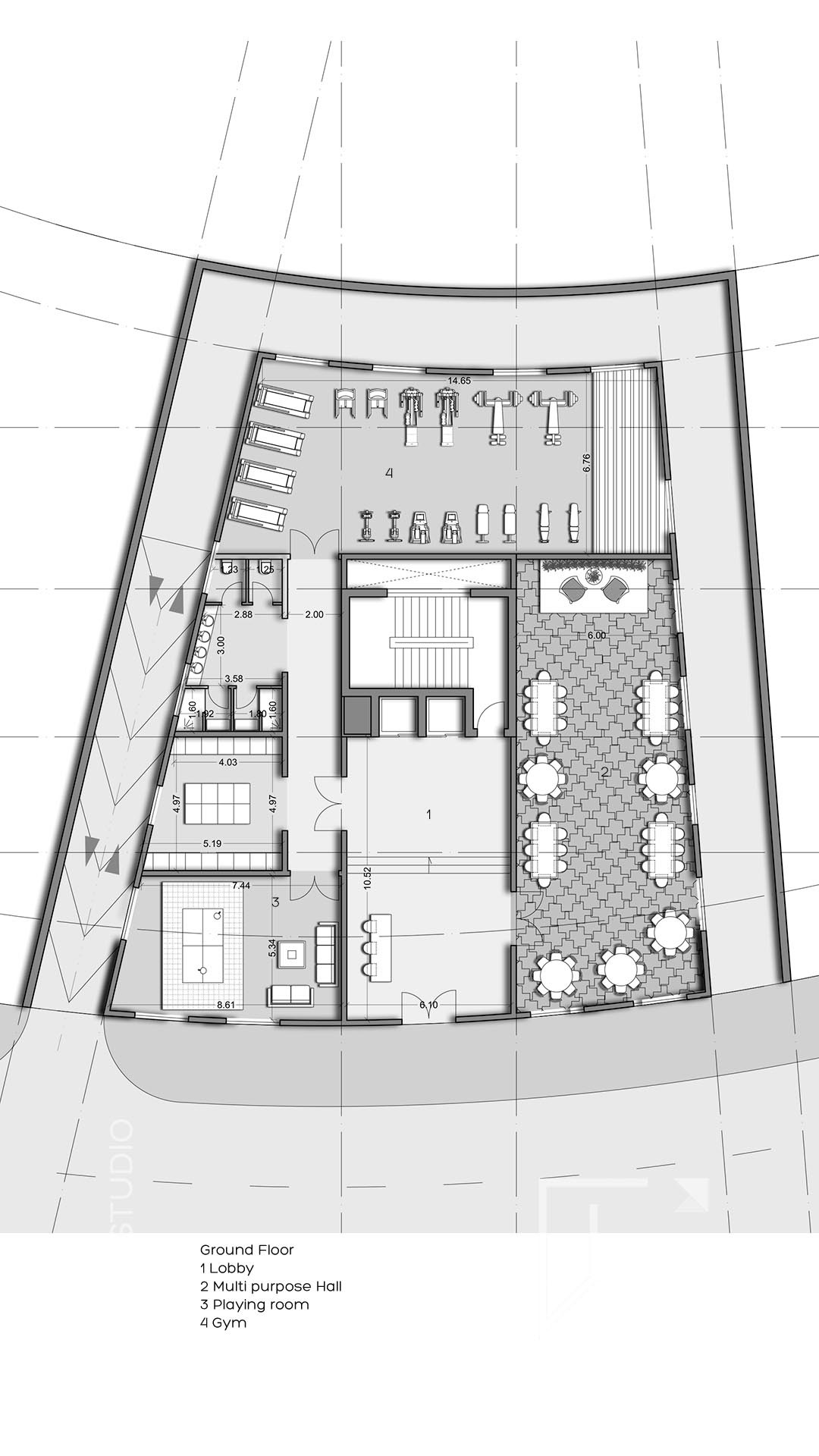
Residential Tower

Residential Tower

Architectural Design for a 15 level residential tower in Latakia city

برج سكني في اللاذقية

تصميم معماري لبرج سكني من 15 طابق في مدينة اللاذقية









info@otor-sy.com

Damascus,29th may.str 

دمشق, شارع 29 أيار 

+ 963 - 93 - 338 6458

+ 963 - 11 - 231 1792

/* */